Lab Environment


CC434 - Main Lab

CC434_long_view5_web_version.jpg
The long view of the main lab.
CC434_long_view6_web_version.jpg
The opposite view of the main lab. Notice the skyline power and cat 7 wiring for the lab intranet.

Dual Monitor Setup

CC434_dual_monitor_web_version.jpg
Each station has a dual monitor setup at height adjustable desks with rubber flooring throughout.

Server Racks

CC434_server_racks_web_version.jpg
Here are our server racks, environmentally controlled by 6 tons of HVAC.

Kitchenette and Couch

CC434_kitchenette_web_version.jpg
We have a kitchenette to handle our dining needs.
CC434_couch_web_version.jpg
Our couch for visitors and those important 10 minute power naps.

CC436 - Office

CC436_window2_web_version.jpg
PI's office, great for office hours and small meetings.
CC436_window_web_version.jpg
Easy access from the lab and a window so that it is easy to see if the PI is busy.

CC438 - General Purpose Room

CC438_left_side_web_version.jpg
General purpose room for lab meetings, storage, and videoconferencing.
CC438_doors2_web_version.jpg
Also accessible from the office or the lab.

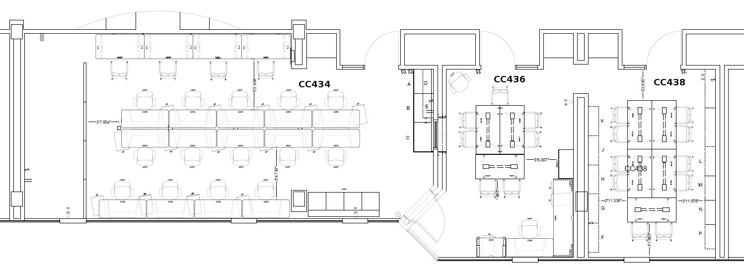
Floor Plans

furniture_layout_v2.png

lab_map_-_Page_1_(1).png
I Attachment Action Size Date Who Comment
CC434_couch_web_version.jpgjpg CC434_couch_web_version.jpg manage 384 K 07 May 2015 - 03:03 HunterMoseley  
CC434_dual_monitor_web_version.jpgjpg CC434_dual_monitor_web_version.jpg manage 635 K 07 May 2015 - 03:01 HunterMoseley  
CC434_kitchenette_web_version.jpgjpg CC434_kitchenette_web_version.jpg manage 737 K 07 May 2015 - 03:03 HunterMoseley  
CC434_long_view5_web_version.jpgjpg CC434_long_view5_web_version.jpg manage 557 K 07 May 2015 - 03:00 HunterMoseley  
CC434_long_view6_web_version.jpgjpg CC434_long_view6_web_version.jpg manage 579 K 07 May 2015 - 03:45 HunterMoseley  
CC434_server_racks_web_version.jpgjpg CC434_server_racks_web_version.jpg manage 693 K 07 May 2015 - 03:04 HunterMoseley  
CC436_window2_web_version.jpgjpg CC436_window2_web_version.jpg manage 818 K 07 May 2015 - 03:05 HunterMoseley  
CC436_window_web_version.jpgjpg CC436_window_web_version.jpg manage 588 K 07 May 2015 - 03:05 HunterMoseley  
CC438_doors2_web_version.jpgjpg CC438_doors2_web_version.jpg manage 496 K 07 May 2015 - 03:06 HunterMoseley  
CC438_left_side_web_version.jpgjpg CC438_left_side_web_version.jpg manage 538 K 07 May 2015 - 03:06 HunterMoseley  
furniture_layout_v2.pngpng furniture_layout_v2.png manage 93 K 17 Jun 2015 - 18:54 HunterMoseley  
lab_map_-_Page_1.pngpng lab_map_-_Page_1.png manage 168 K 21 Mar 2017 - 19:40 UnknownUser  
lab_map_-_Page_1_(1).pngpng lab_map_-_Page_1_(1).png manage 168 K 17 Apr 2017 - 20:52 UnknownUser updated and fixed typos
Topic revision: r6 - 17 Apr 2017, eugene
This site is powered by FoswikiCopyright © by the contributing authors. All material on this collaboration platform is the property of the contributing authors.
Ideas, requests, problems regarding Moseley Bioinformatics Lab? Send feedback